Casa semindipendente in vendita

San Benedetto Po, Via Bardelle
€ 115.000
5 locali 5 locali
194 Mq 194 Mq
2 bagni 2 bagni

Casa semindipendente in vendita

San Benedetto Po, Via Bardelle

Descrizione annuncio

SAN BENEDETTO-FRAZ. BARDELLE
Proponiamo in vendita casa semi indipendente edificata negli anni ’70, inserita in contesto tranquillo e residenziale.
L’immobile è situato su un lotto che ospita due abitazioni affiancate e dispone di ingresso carraio automatizzato e pedonale. L’accesso avviene tramite un vialetto comune, gravato da servitù di passaggio, che consente l’entrata ad entrambe le proprietà; ciascuna unità, ad esclusione del vialetto condiviso, gode comunque delle proprie pertinenze e spazi di proprietà esclusiva
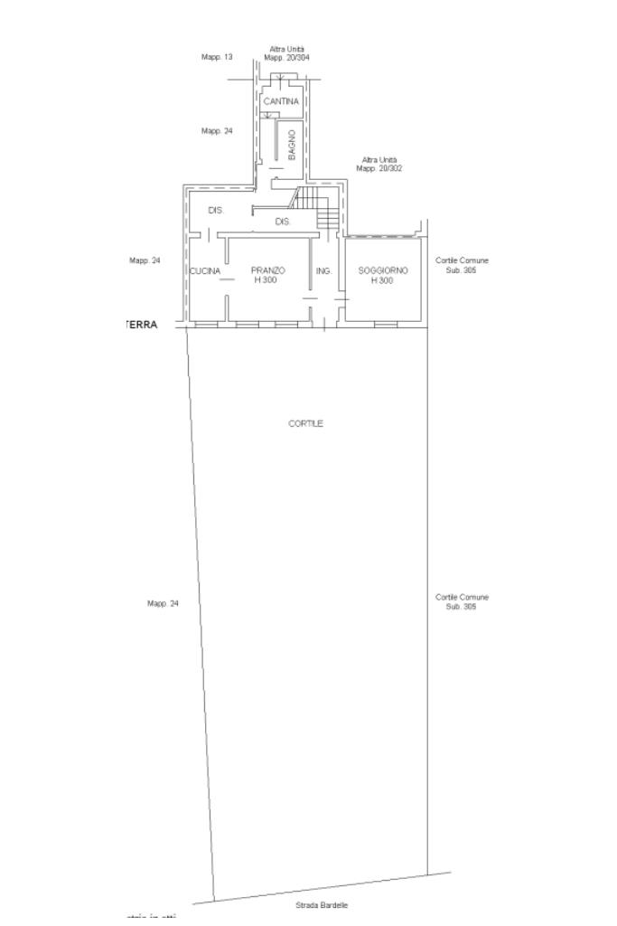
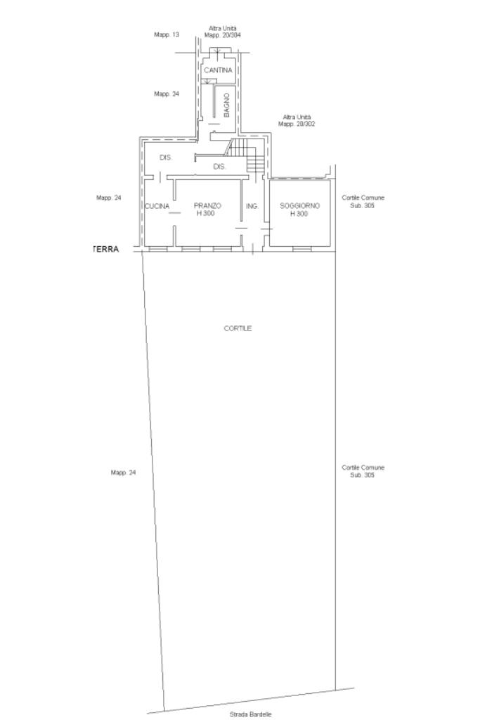
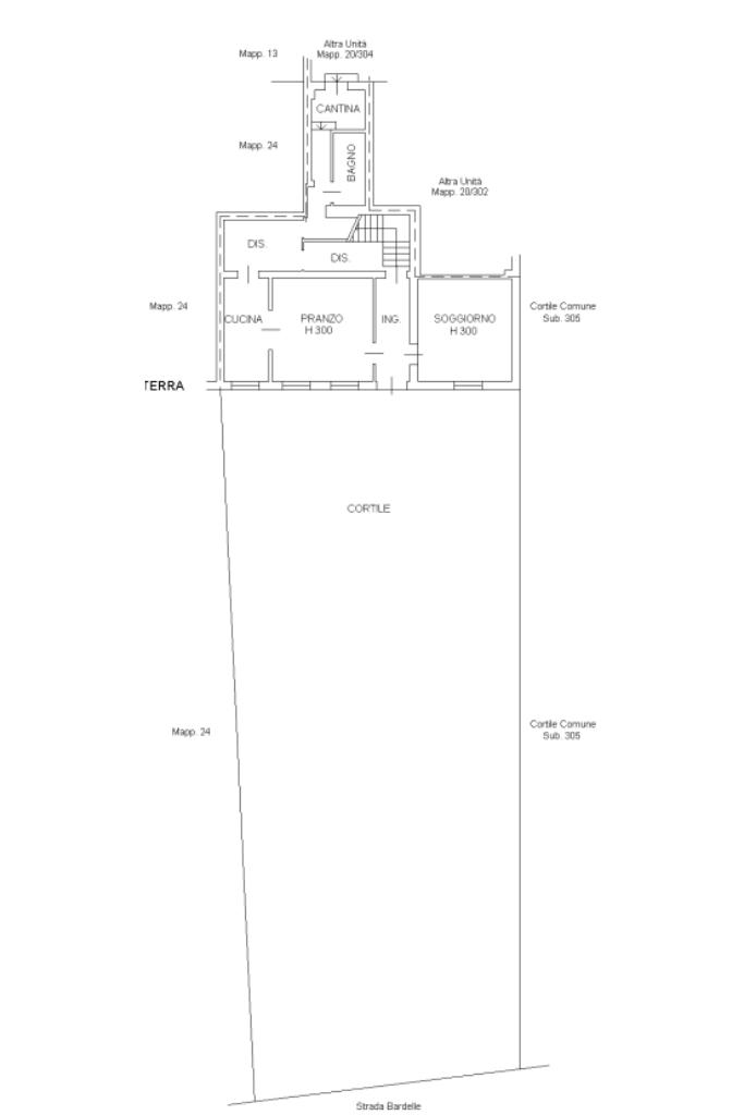
L’abitazione si sviluppa su due livelli. Al piano terra troviamo ingresso, soggiorno, sala da pranzo con cucinotto, disimpegno, bagno con doccia e locale tecnico con accesso diretto al garage di ben 34 mq.
Una comoda scala interna conduce al piano primo dove si sviluppa la zona notte composta da ripostiglio, bagno con vasca e tre camere da letto matrimoniali, di cui una con accesso al balcone.
Completa la proprietà un ampio giardino privato di circa 290 mq, ideale per famiglie, per chi ama gli spazi verdi o desidera realizzare un’area relax all’aperto in totale privacy.
Soluzione ideale per chi è alla ricerca di spazi generosi, ambienti ben distribuiti e un’importante area esterna, senza rinunciare alla tranquillità del contesto residenziale.

SE È INTERESSATO/A ALLE NOSTRE PROPOSTE E HA UNA CASA DA VENDERE, VENGA A TROVARCI PERCHÉ ABBIAMO LA SOLUZIONE IDEALE PER ACQUISTARE E VENDERE CONTESTUALMENTE IN UN'UNICA OPERAZIONE, CON ESTREMA SERENITÀ E NEL MINOR TEMPO POSSIBILE.

INOLTRE, PER CHI VENDE CON NOI, GARANTIAMO I SEGUENTI SERVIZI:
-VALUTAZIONE GRATUITA
-ANALISI DI PROVENIENZA
-VISURE IPOTECARIE E CATASTALI
-MOLTEPLICI E MIGLIORI SERVIZI
DI PROMOZIONE PUBBLICITARIA TRADIZIONALI E SULLE PRINCIPALI PIATTAFORME IN RETE

Mostra tutto

Nelle vicinanze

Trasporto pubblico Trasporto pubblico
San Benedetto Po
San Benedetto Po
2,8 Km
Trasporto pubblico
1,7 Km
Farmacia Farmacia
Farmacia
2,2 Km
Ospedali Ospedali
Poli ambulatorio
2,3 Km
Supermercati Supermercati
COOP
1,6 Km
Supermercati Gobetti
2,2 Km
Negozi Negozi
Max Bel
1,6 Km
Bar Bar
caffè Cocca
2,7 Km
Ristoranti Ristoranti
Ristorante Bon Appétit
2,4 Km
Mostra tutto

Caratteristiche

Rif.:
61187449
Piano:
2 di 2 (Piano su più livelli)
Box:
1
Balconi:
1
Camere da letto:
3
Arredamento:
Assente
Mostra tutto
Prezzo Prezzo
€ 115.000
Rata mutuo Rata mutuo
€ 546 / mese
Spese annue Spese annue
€ 0
Proponi il tuo prezzoProponi il tuo prezzo

Classe Energetica

G
G
G
G
G
G
G
G
G
EP globale non rinnovabile:
307.34 kW h/m² anno
EP globale rinnovabile:
0.00 kW h/m² anno
EP invernale del fabbricato:
EP estiva del fabbricato:
Anno di costruzione:
1970
Riscaldamento:
Autonomo
Tipo impianto:
A radiatori
Tipo alimentazione:
Metano

Ti interessa visionare l'immobile?

Fissa un appuntamento  Fissa un appuntamento

Richiedi informazioni

Clicca su Leggi per aprire l'informativa
* Questi campi sono obbligatori

Calcola il tuo mutuo

Semplice e senza impegno
Anticipo

( % )
Mutuo

( % )

pochi semplici passi

inserisci i tuoi dati
Questionario completato
Grazie per aver richiesto un appuntamento senza impegno con un nostro Consulente del Credito e Assicurativo.

Hai inserito correttamente tutti i dati necessari e a breve riceverai una e-mail con un link da convalidare per inviare i tuoi dati.
Affiliato
Tecnopegognaga Srl
Via Enrico Berlinguer, 80 46020 Pegognaga (MN)

Il nostro staff


  • Andrea Brescia
    Collaboratore

  • Andrea Curcio
    Affiliato

  • Mattia Castellaneta
    Affiliato

  • Sara Rita Gregori
    Collaboratrice

  • Marzia Pontone
    Coordinatrice

  • Giovanni Boccia
    Affiliato
Via Enrico Berlinguer, 80 46020 Pegognaga (MN)
Zona: Pegognaga
Mostra su mappa
Orari: Lunedì-Venerdì: 9.00-13.00 15.00-19.30 Sabato: 9.00-13.00
Affiliato
Tecnopegognaga Srl
Via Enrico Berlinguer, 80 46020 Pegognaga (MN)

2026 Tecnocasa Franchising S.p.A. - P. IVA 08365160152 - Via Monte Bianco 60/A 20089 Rozzano (MI). Ogni agenzia ha un proprio titolare ed è autonoma. Privacy policy | Policy utilizzo | Cookie policy