Casa indipendente in vendita

San Benedetto Po, Strada Argine Zara - Portiolo
€ 59.000
5 locali 5 locali
238 Mq 238 Mq
1 bagno 1 bagno

Casa indipendente in vendita

San Benedetto Po, Strada Argine Zara - Portiolo

Descrizione annuncio

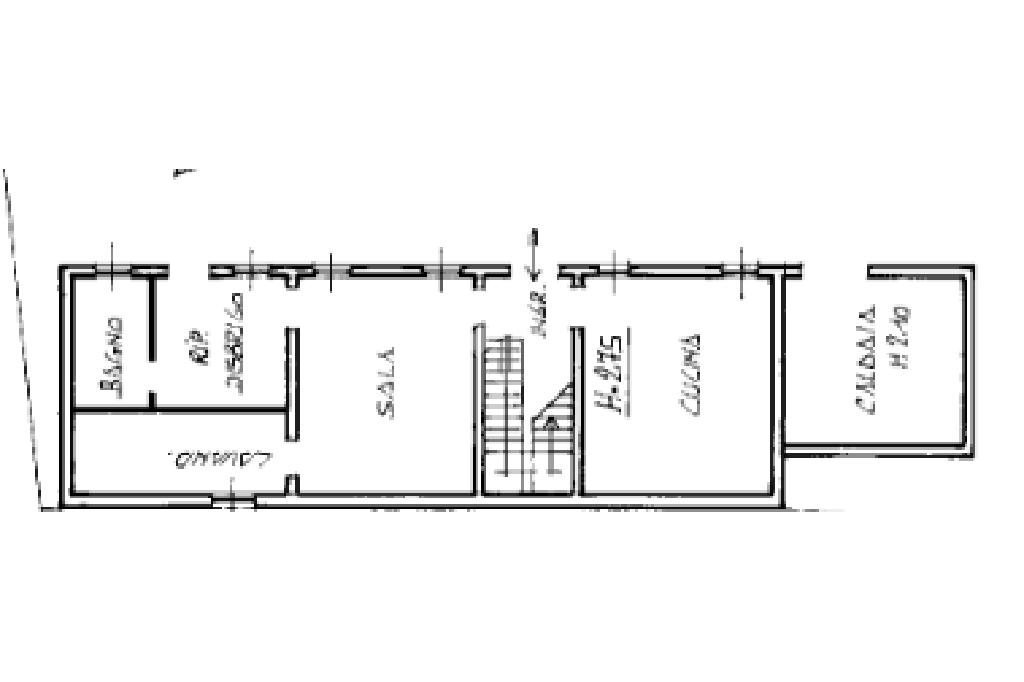
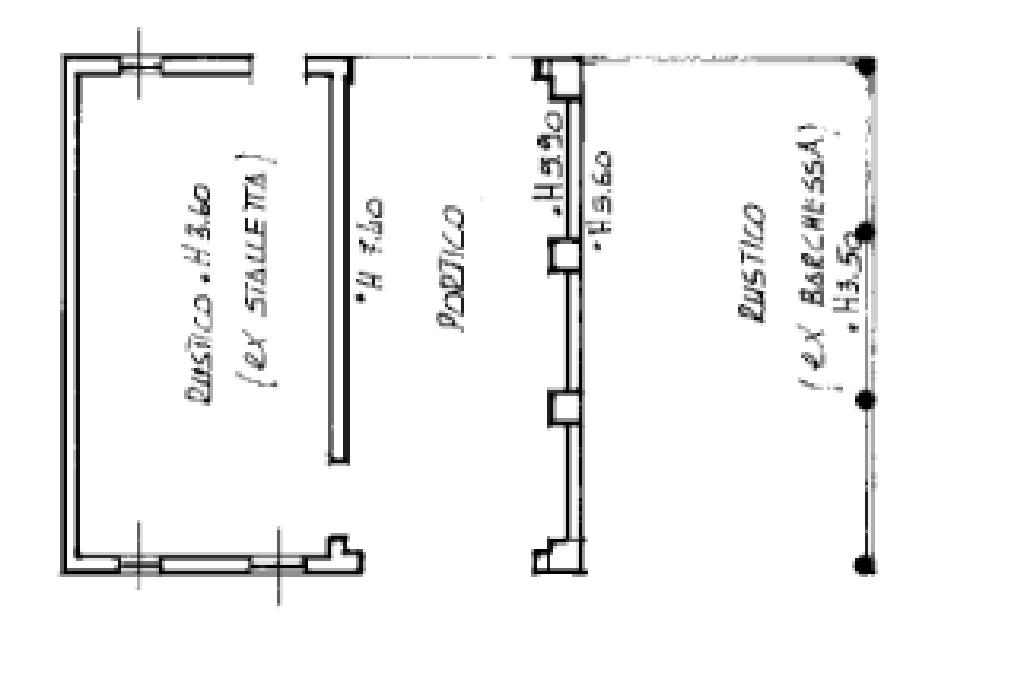
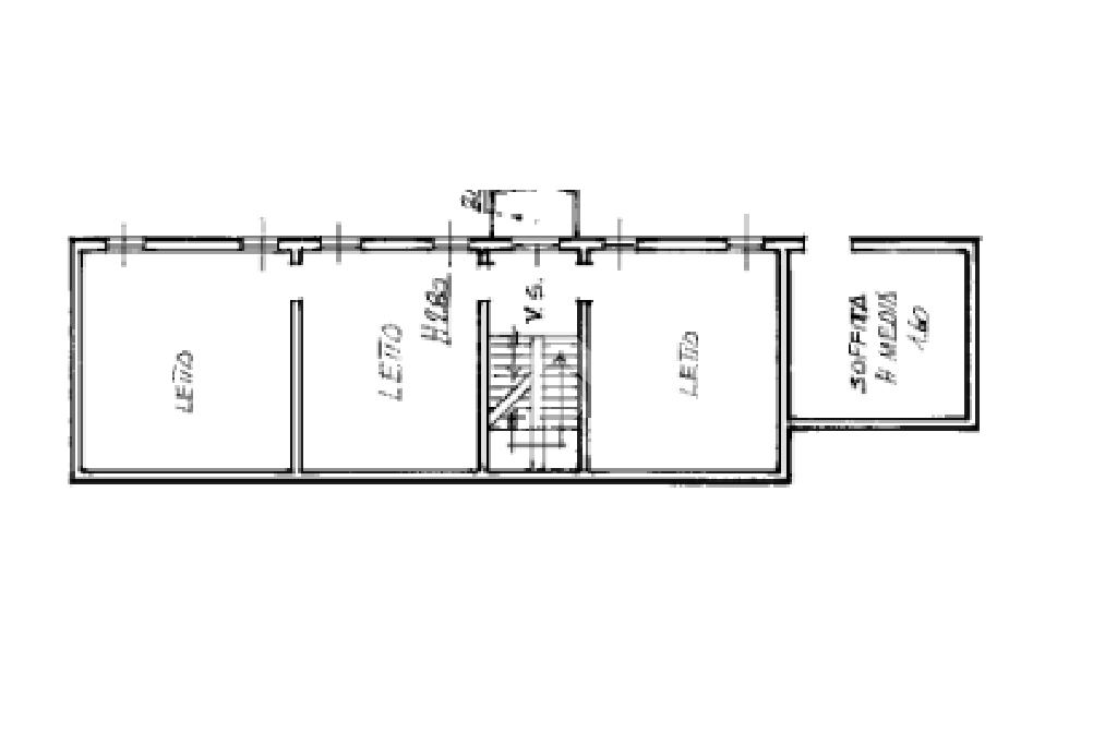
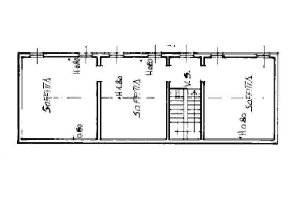
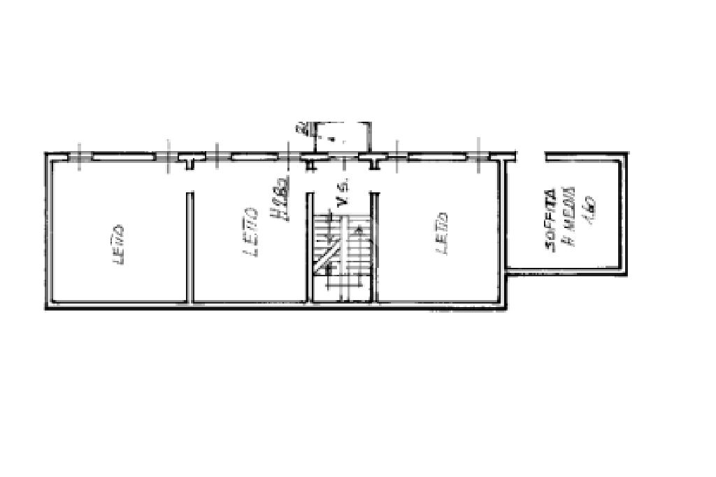
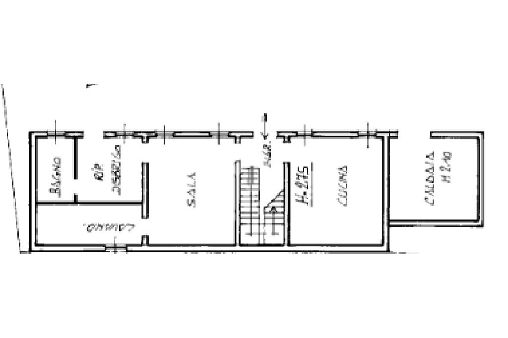
Nella tranquilla località di Portiolo, comune di San Benedetto Po, si propone in vendita una casa indipendente di 238 mq commerciali. Questa abitazione, distribuita su più livelli, offre ampi spazi e una disposizione versatile, ideale per chi cerca una residenza che unisca il fascino del passato con la possibilità di personalizzazione. La struttura, conserva dettagli architettonici tipici dell'epoca, che conferiscono carattere e unicità. Gli ambienti interni sono luminosi e ben distribuiti, permettendo una gestione funzionale degli spazi. La posizione strategica consente di godere della tranquillità della campagna mantovana, pur essendo a breve distanza dai principali servizi e collegamenti.

SE E' INTERESSATO/A ALLE NOSTRE PROPOSTE ED HA UNA CASA DA VENDERE, VENGA A TROVARCI PERCHE' ABBIAMO LA SOLUZIONE IDEALE PER ACQUISTARE E VENDERE CONTESTUALMENTE IN UN'UNICA OPERAZIONE CON ESTREMA SERENITA' NEL MINOR TEMPO POSSIBILE.
INOLTRE PER CHI VENDE CON NOI, GARANTIAMO I SEGUENTI SERVIZI:
-VALUTAZIONE GRATUITA
-ANALISI DI PROVENIENZA
-VISURE IPOTCARIE, CATASTALI
-MOLTEPLICI E MIGLIORI SERVIZI DI PROMOZIONE PUBBLICITARIA TRADIZIONALI E SULLEE PRINCIPALI PIATTAFORME IN RETE.

Mostra tutto

Caratteristiche

Rif.:
61103884
Piano:
Su più livelli di 2
Totale piani:
2
Box:
1
Terrazzi:
1
Camere da letto:
1
Mostra tutto
Prezzo Prezzo
€ 59.000
Rata mutuo Rata mutuo
€ 280 / mese
Spese annue Spese annue
€ 800
Proponi il tuo prezzoProponi il tuo prezzo

Classe Energetica

G
G
G
G
G
G
G
G
G
EP globale non rinnovabile:
49340.00 kW h/m² anno
EP globale rinnovabile:
10587.00 kW h/m² anno
EP invernale del fabbricato:
EP estiva del fabbricato:
Anno di costruzione:
1925
Riscaldamento:
Assente

Ti interessa visionare l'immobile?

Fissa un appuntamento  Fissa un appuntamento

Richiedi informazioni

Clicca su Leggi per aprire l'informativa
* Questi campi sono obbligatori

Calcola il tuo mutuo

Semplice e senza impegno
Anticipo

( % )
Mutuo

( % )

pochi semplici passi

inserisci i tuoi dati
Questionario completato
Grazie per aver richiesto un appuntamento senza impegno con un nostro Consulente del Credito e Assicurativo.

Hai inserito correttamente tutti i dati necessari e a breve riceverai una e-mail con un link da convalidare per inviare i tuoi dati.
Affiliato
Tecnopegognaga Srl
Via Enrico Berlinguer, 80 46020 Pegognaga (MN)

Il nostro staff


  • Andrea Brescia
    Collaboratore

  • Andrea Curcio
    Affiliato

  • Mattia Castellaneta
    Affiliato

  • Sara Rita Gregori
    Collaboratrice

  • Marzia Pontone
    Coordinatrice

  • Giovanni Boccia
    Affiliato
Via Enrico Berlinguer, 80 46020 Pegognaga (MN)
Zona: Pegognaga
Mostra su mappa
Orari: Lunedì-Venerdì: 9.00-13.00 15.00-19.30 Sabato: 9.00-13.00
Affiliato
Tecnopegognaga Srl
Via Enrico Berlinguer, 80 46020 Pegognaga (MN)

2026 Tecnocasa Franchising S.p.A. - P. IVA 08365160152 - Via Monte Bianco 60/A 20089 Rozzano (MI). Ogni agenzia ha un proprio titolare ed è autonoma. Privacy policy | Policy utilizzo | Cookie policy