Villa singola in vendita

Pegognaga, Viale S. Lorenzo
€ 275.000
5 locali 5 locali
295 Mq 295 Mq
2 bagni 2 bagni

Villa singola in vendita

Pegognaga, Viale S. Lorenzo

Descrizione annuncio

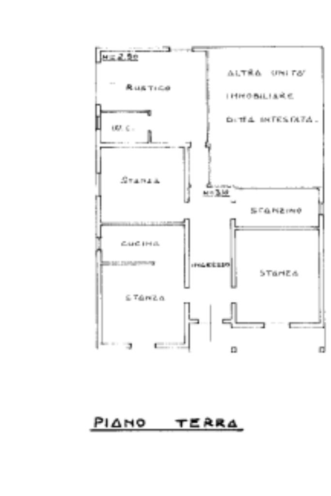
Proponiamo in posizione centrale lungo il viale principale di Pegognaga una villa singola immersa nel verde, caratterizzata da spazi abitativi generosi e indipendenza totale, indicata per nuclei familiari numerosi o per chi ricerca tranquillità con accesso agevole ai principali servizi. L’unità abitativa si sviluppa su due livelli: al piano terra si trovano l’ingresso, il soggiorno con cucina, due locali ad uso camere, uno stanzino e un bagno; al piano primo sono presenti soggiorno, cucina, disimpegno, due camere e un secondo bagno.
La proprietà comprende inoltre giardino privato, due autorimesse, portico e balcone, nonché rustico annesso con potenzialità di ampliamento o personalizzazione a seconda delle esigenze.
Soluzione versatile e altamente personalizzabile, ideale per chi necessita di ambienti ampi, privacy e possibilità di sviluppo in contesto centrale e servito.

SE È INTERESSATO/A ALLE NOSTRE PROPOSTE E HA UNA CASA DA VENDERE, VENGA A TROVARCI PERCHÉ ABBIAMO LA SOLUZIONE IDEALE PER ACQUISTARE E VENDERE CONTESTUALMENTE IN UN'UNICA OPERAZIONE, CON ESTREMA SERENITÀ E NEL MINOR TEMPO POSSIBILE.
INOLTRE, PER CHI VENDE CON NOI, GARANTIAMO I SEGUENTI SERVIZI:
-VALUTAZIONE GRATUITA
-ANALISI DI PROVENIENZA
-VISURE IPOTECARIE E CATASTALI
-MOLTEPLICI E MIGLIORI SERVIZI DI PROMOZIONE PUBBLICITARIA TRADIZIONALI E SULLE PRINCIPALI PIATTAFORME IN RETE

Mostra tutto

Nelle vicinanze

Trasporto pubblico Trasporto pubblico
Pegognaga
Pegognaga
1,4 Km
Scuole Scuole
Scuole
760 m
Supermercati Supermercati
Coop
190 m
Famila
950 m
Negozi Negozi
Virgom Store
650 m
Negozi
710 m
Bar Bar
Casbah
800 m
Bar
810 m
Mostra tutto

Caratteristiche

Rif.:
61171479
Totale piani:
2
Box:
1
Balconi:
1
Terrazzi:
1
Camere da letto:
3
Mostra tutto
Prezzo Prezzo
€ 275.000
Rata mutuo Rata mutuo
€ 1.296 / mese
Spese annue Spese annue
€ 0
Proponi il tuo prezzoProponi il tuo prezzo

Classe Energetica

F
F
F
F
F
F
F
F
F
EP globale non rinnovabile:
313.72 kW h/m² anno
EP globale rinnovabile:
0.35 kW h/m² anno
EP invernale del fabbricato:
EP estiva del fabbricato:
Anno di costruzione:
1970
Riscaldamento:
Autonomo
Tipo impianto:
A radiatori
Tipo alimentazione:
Metano

Ti interessa visionare l'immobile?

Fissa un appuntamento  Fissa un appuntamento

Richiedi informazioni

Clicca su Leggi per aprire l'informativa
* Questi campi sono obbligatori

Calcola il tuo mutuo

Semplice e senza impegno
Anticipo

( % )
Mutuo

( % )

pochi semplici passi

inserisci i tuoi dati
Questionario completato
Grazie per aver richiesto un appuntamento senza impegno con un nostro Consulente del Credito e Assicurativo.

Hai inserito correttamente tutti i dati necessari e a breve riceverai una e-mail con un link da convalidare per inviare i tuoi dati.
Affiliato
Tecnopegognaga Srl
Via Enrico Berlinguer, 80 46020 Pegognaga (MN)

Il nostro staff


  • Andrea Brescia
    Collaboratore

  • Andrea Curcio
    Affiliato

  • Mattia Castellaneta
    Affiliato

  • Sara Rita Gregori
    Collaboratrice

  • Marzia Pontone
    Coordinatrice

  • Giovanni Boccia
    Affiliato
Via Enrico Berlinguer, 80 46020 Pegognaga (MN)
Zona: Pegognaga
Mostra su mappa
Orari: Lunedì-Venerdì: 9.00-13.00 15.00-19.30 Sabato: 9.00-13.00
Affiliato
Tecnopegognaga Srl
Via Enrico Berlinguer, 80 46020 Pegognaga (MN)

2026 Tecnocasa Franchising S.p.A. - P. IVA 08365160152 - Via Monte Bianco 60/A 20089 Rozzano (MI). Ogni agenzia ha un proprio titolare ed è autonoma. Privacy policy | Policy utilizzo | Cookie policy