Porzione di trifamiliare in vendita

Pegognaga, Str. Chiaviche
€ 49.000
3 locali 3 locali
94 Mq 94 Mq
1 bagno 1 bagno

Porzione di trifamiliare in vendita

Pegognaga, Str. Chiaviche

Descrizione annuncio

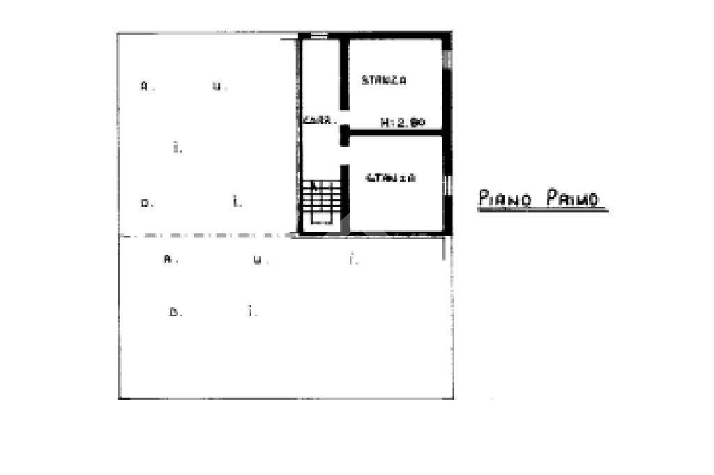
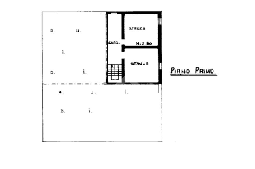
Nel cuore di Pegognaga, proponiamo in vendita porzione di trifamiliare edificata nel 1929. Internamente è così suddivisa: ingresso, soggiorno, servizio e cucinotto al piano terra. Tramite la scala interna presente nel disimpegno si accede alla zona notte posta al piano primo, composta da un disimpegno e due camere da letto matrimoniali. Gli interni accoglienti si prestano a diverse soluzioni di arredo, permettendo di personalizzare ogni ambiente secondo le proprie esigenze. La posizione strategica consente di godere della tranquillità del contesto residenziale, pur essendo a breve distanza dai principali servizi e collegamenti. L'IMMOBILE E' ATTUALMENTE LOCATO, QUINDI DISPONIBILE PER INVESTIMENTO.

SE È INTERESSATO/A ALLE NOSTRE PROPOSTE E HA UNA CASA DA VENDERE, VENGA A TROVARCI PERCHÉ ABBIAMO LA SOLUZIONE IDEALE PER ACQUISTARE E VENDERE CONTESTUALMENTE IN UN'UNICA OPERAZIONE, CON ESTREMA SERENITÀ E NEL MINOR TEMPO POSSIBILE.
INOLTRE, PER CHI VENDE CON NOI, GARANTIAMO I SEGUENTI SERVIZI:
-VALUTAZIONE GRATUITA
-ANALISI DI PROVENIENZA
-VISURE IPOTECARIE E CATASTALI
-MOLTEPLICI E MIGLIORI SERVIZI DI PROMOZIONE PUBBLICITARIA TRADIZIONALI E SULLE PRINCIPALI PIATTAFORME IN RETE.

Mostra tutto

Nelle vicinanze

Trasporto pubblico Trasporto pubblico
Pegognaga
Pegognaga
920 m
Scuole Scuole
Scuole
440 m
Supermercati Supermercati
Famila
780 m
Coop
1,0 Km
Negozi Negozi
Virgom Store
620 m
Negozi
790 m
Bar Bar
Casbah
480 m
Bar
630 m
Mostra tutto

Caratteristiche

Rif.:
61128164
Totale piani:
2
Box:
1
Camere da letto:
2
Arredamento:
Assente
Condizionamento:
Autonomo
Mostra tutto
Prezzo Prezzo
€ 49.000
Rata mutuo Rata mutuo
€ 231 / mese
Spese annue Spese annue
€ 0
Proponi il tuo prezzoProponi il tuo prezzo

Classe Energetica

G
G
G
G
G
G
G
G
G
EP globale non rinnovabile:
130.14 kW h/m² anno
EP globale rinnovabile:
88.88 kW h/m² anno
EP invernale del fabbricato:
EP estiva del fabbricato:
Anno di costruzione:
1929
Riscaldamento:
Autonomo
Tipo impianto:
A radiatori
Tipo alimentazione:
Metano

Ti interessa visionare l'immobile?

Fissa un appuntamento  Fissa un appuntamento

Richiedi informazioni

Clicca su Leggi per aprire l'informativa
* Questi campi sono obbligatori

Calcola il tuo mutuo

Semplice e senza impegno
Anticipo

( % )
Mutuo

( % )

pochi semplici passi

inserisci i tuoi dati
Questionario completato
Grazie per aver richiesto un appuntamento senza impegno con un nostro Consulente del Credito e Assicurativo.

Hai inserito correttamente tutti i dati necessari e a breve riceverai una e-mail con un link da convalidare per inviare i tuoi dati.
Affiliato
Tecnopegognaga Srl
Via Enrico Berlinguer, 80 46020 Pegognaga (MN)

Il nostro staff


  • Andrea Brescia
    Collaboratore

  • Andrea Curcio
    Affiliato

  • Mattia Castellaneta
    Affiliato

  • Sara Rita Gregori
    Collaboratrice

  • Marzia Pontone
    Coordinatrice

  • Giovanni Boccia
    Affiliato
Via Enrico Berlinguer, 80 46020 Pegognaga (MN)
Zona: Pegognaga
Mostra su mappa
Orari: Lunedì-Venerdì: 9.00-13.00 15.00-19.30 Sabato: 9.00-13.00
Affiliato
Tecnopegognaga Srl
Via Enrico Berlinguer, 80 46020 Pegognaga (MN)

2026 Tecnocasa Franchising S.p.A. - P. IVA 08365160152 - Via Monte Bianco 60/A 20089 Rozzano (MI). Ogni agenzia ha un proprio titolare ed è autonoma. Privacy policy | Policy utilizzo | Cookie policy