Villa singola in vendita

Gonzaga, Via Ferrante Gonzaga
€ 299.000
5 locali 5 locali
588 Mq 588 Mq
3 bagni 3 bagni

Villa singola in vendita

Gonzaga, Via Ferrante Gonzaga

Descrizione annuncio

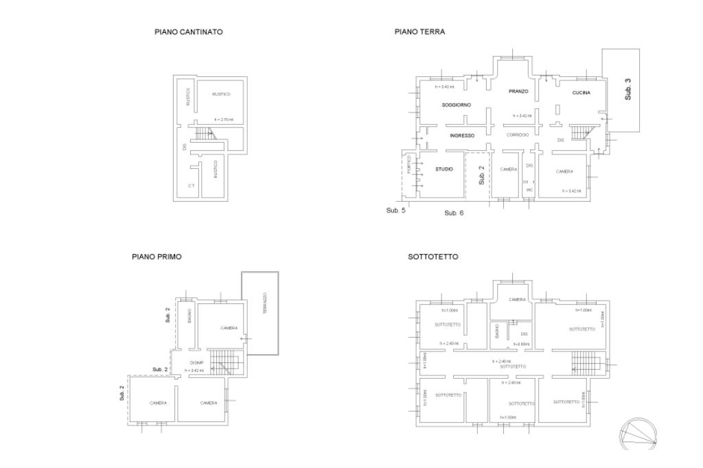
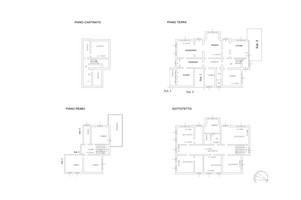
Nel cuore di Gonzaga, proponiamo in vendita villa singola posta su un lotto di circa 2650 mq, composta da due unità abitative indipendenti.
L’immobile offre una superficie complessiva di circa 390 m² calpestabili (circa 588 m² commerciali) e rappresenta una soluzione ideale per due nuclei familiari, per chi cerca ampi spazi o come investimento.
Le abitazioni offrono ambienti luminosi e versatili, e sono così suddivise:
-PRIMA UNITA’: composta da ingresso disimpegno, soggiorno, sala da pranzo e cucina separata abitabile, due camere da letto e un servizio al piano terra. Al piano primo, si trova la zona notte, composta da altre 3 camere da letto, un secondo disimpegno, un secondo servizio e un terrazzo.
SECONDA UNITA’: Presenta un ingresso disimpegno dal quale si accede direttamente al piano primo tramite la scala interna, la quale si trovano un soggiorno, cucina separata abitabile, una camera da letto matrimoniale, uno studio, un servizio e un balcone.
Completano la soluzione l’autorimessa e il giardino di circa 2200 mq che circonda la proprietà.
La posizione centrale permette di raggiungere scuole, negozi e servizi in pochi minuti, mantenendo al tempo stesso la tranquillità e il fascino tipico delle case di corte mantovane

SE È INTERESSATO/A ALLE NOSTRE PROPOSTE E HA UNA CASA DA VENDERE, VENGA A TROVARCI PERCHÉ ABBIAMO LA SOLUZIONE IDEALE PER ACQUISTARE E VENDERE CONTESTUALMENTE IN UN'UNICA OPERAZIONE, CON ESTREMA SERENITÀ E NEL MINOR TEMPO POSSIBILE.
INOLTRE, PER CHI VENDE CON NOI, GARANTIAMO I SEGUENTI SERVIZI:
-VALUTAZIONE GRATUITA
-ANALISI DI PROVENIENZA
-VISURE IPOTECARIE E CATASTALI
-MOLTEPLICI E MIGLIORI SERVIZI DI PROMOZIONE PUBBLICITARIA TRADIZIONALI E SULLE PRINCIPALI PIATTAFORME IN RETE

Mostra tutto

Nelle vicinanze

Trasporto pubblico Trasporto pubblico
Gonzaga-Reggiolo
Gonzaga-Reggiolo
2,0 Km
Supermercati Supermercati
Famila Superstore
690 m
Ristoranti Ristoranti
Ristorante Il Lago Verde
2,8 Km
Mostra tutto

Caratteristiche

Rif.:
61140447
Piano:
Su più livelli di 2
Totale piani:
2
Box:
1
Balconi:
2
Terrazzi:
1
Mostra tutto
Prezzo Prezzo
€ 299.000
Rata mutuo Rata mutuo
€ 1.409 / mese
Spese annue Spese annue
€ 0
Proponi il tuo prezzoProponi il tuo prezzo

Classe Energetica

G
G
G
G
G
G
G
G
G
EP globale non rinnovabile:
372.40 kW h/m² anno
EP globale rinnovabile:
1.82 kW h/m² anno
EP invernale del fabbricato:
EP estiva del fabbricato:
Anno di costruzione:
1930
Riscaldamento:
Autonomo
Tipo impianto:
A radiatori
Tipo alimentazione:
Metano

Ti interessa visionare l'immobile?

Fissa un appuntamento  Fissa un appuntamento

Richiedi informazioni

Clicca su Leggi per aprire l'informativa
* Questi campi sono obbligatori

Calcola il tuo mutuo

Semplice e senza impegno
Anticipo

( % )
Mutuo

( % )

pochi semplici passi

inserisci i tuoi dati
Questionario completato
Grazie per aver richiesto un appuntamento senza impegno con un nostro Consulente del Credito e Assicurativo.

Hai inserito correttamente tutti i dati necessari e a breve riceverai una e-mail con un link da convalidare per inviare i tuoi dati.
Affiliato
Tecnopegognaga Srl
Via Enrico Berlinguer, 80 46020 Pegognaga (MN)

Il nostro staff


  • Andrea Brescia
    Collaboratore

  • Andrea Curcio
    Affiliato

  • Mattia Castellaneta
    Affiliato

  • Sara Rita Gregori
    Collaboratrice

  • Marzia Pontone
    Coordinatrice

  • Giovanni Boccia
    Affiliato
Via Enrico Berlinguer, 80 46020 Pegognaga (MN)
Zona: Pegognaga
Mostra su mappa
Orari: Lunedì-Venerdì: 9.00-13.00 15.00-19.30 Sabato: 9.00-13.00
Affiliato
Tecnopegognaga Srl
Via Enrico Berlinguer, 80 46020 Pegognaga (MN)

2026 Tecnocasa Franchising S.p.A. - P. IVA 08365160152 - Via Monte Bianco 60/A 20089 Rozzano (MI). Ogni agenzia ha un proprio titolare ed è autonoma. Privacy policy | Policy utilizzo | Cookie policy